Nieuw in verkoop:Kieftveen 18-192, 3781 PP Voorthuizen - Foto
Nieuw in verkoop
+26

Kieftveen 18-192 3781 PP Voorthuizen € 125.000,- k.k.

  • Woonhuis
  • 2 kamers
  • 1 slaapkamer(s)
  • 1 badkamer
  • Bouwjaar 2022
  • 154 m² perceeloppervlakte
  • 30 m² gebruiksoppervlakte

Beschrijving

Welkom op een heerlijke plek waar ontspanning en comfort samenkomen. Op de prachtige Veluwe vind je deze moderne, sfeervolle recreatiewoning uit 2022, gelegen op Recreatiepark De IJsvogel in Voorthuizen. Een fijne uitvalsbasis voor wie wil genieten van rust, natuur én goede voorzieningen, zonder in te leveren op gemak.

Ligging:
De ligging is ideaal. Het park is goed bereikbaar met zowel de auto als het openbaar vervoer en ligt centraal in Nederland, vlak bij uitvalswegen richting Amersfoort, Apeldoorn en Barneveld. Je zit hier midden op de Veluwe, een van de mooiste natuurgebieden van het land. In de directe omgeving kun je eindeloos wandelen en fietsen door bossen en heide, maar ook leuke uitstapjes maken naar gezellige dorpen, dierentuinen, musea en attracties voor jong en oud.

Woning:
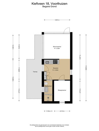
Je komt binnen in de keuken met doorloop naar de lichte woonkamer, waar grote ramen zorgen voor een prettige sfeer en een vrij uitzicht over een ruim speelveld. Een fijne plek om tot rust te komen of gezellig samen te zijn. De keuken is compleet ingericht en van alle gemakken voorzien. De woning beschikt over één comfortabele slaapkamer en een nette, volledige badkamer met douche, wastafel en toilet. Alles is modern afgewerkt en instapklaar, zodat je direct kunt genieten.

Tuin:
Rondom de woning ligt een ruime tuin met grasgazon en een terras. Het geheel is gelegen op een perceel van maar liefst 154 m2 eigen grond.

Park:
Op het park hoef je je geen moment te vervelen. Recreatiepark De IJsvogel biedt uitgebreide voorzieningen zoals een restaurant, snackbar, supermarkt, zwembad (binnen en buitenbad), wellnessfaciliteiten, sport- en speelvoorzieningen en een gevarieerd animatieprogramma. Alles is aanwezig om je verblijf zo comfortabel en ontspannen mogelijk te maken.

Goed om te weten is dat permanente bewoning niet is toegestaan. Er is een parkreglement beschikbaar en de jaarlijkse parkkosten bedragen € 1.779,-. Ben je op zoek naar een moderne recreatiewoning op een toplocatie waar je elk weekend of elke vakantie het ultieme Veluwegevoel ervaart? Dan zou dit zomaar jouw plek kunnen zijn.

Aanvaarding/oplevering in overleg.

Deze informatie is door ons met de nodige zorgvuldigheid samengesteld. Onzerzijds wordt echter geen enkele aansprakelijkheid aanvaard voor enige onvolledigheid, onjuistheid of anderszins, dan wel de gevolgen daarvan. Alle opgegeven maten en oppervlakten zijn indicatief.

Kaart

Kenmerken

Overdracht

Referentienummer
00112
Vraagprijs
€ 125.000,- k.k.
Status
Nieuw in verkoop
Aanvaarding
In overleg
Aangeboden sinds
Maandag 2 maart 2026

Bouw

Type object
Woonhuis, stacaravan, vrijstaande woning
Soort bouw
Bestaande bouw
Bouwperiode
2022
Dakbedekking
Verzinkt
Type dak
Samengesteld
Isolatievormen
Volledig geïsoleerd

Oppervlaktes en inhoud

Perceeloppervlakte
154 m²
Woonoppervlakte
30,3 m²
Inhoud
156 m³

Indeling

Aantal bouwlagen
1
Aantal kamers
2 (waarvan 1 slaapkamer)
Aantal badkamers
1

Tuin

Type
Tuin rondom
Heeft een achterom
Ja

CV ketel

CV ketel
Nefit
Warmtebron
Gas
Bouwjaar
2022
Combiketel
Ja
Eigendom
Eigendom

Uitrusting

Warm water
CV-ketel
Elektrische boiler
Verwarmingssysteem
Centrale verwarming
Badkamervoorzieningen
Douche
Toilet
Wastafel
Tuin aanwezig
Ja

Kadastrale gegevens

Kadastrale aanduiding
Barneveld F 3543
Perceeloppervlakte
154 m²
Omvang
Geheel perceel
Eigendomsituatie
Eigen grond