Verkocht:Floreslaan 62, 6714 AS Ede - Foto
Verkocht
+22

Floreslaan 62 6714 AS Ede

  • Appartement
  • 4 kamers
  • 3 slaapkamers
  • 1 badkamer
  • Bouwjaar 1960
  • 59 m² gebruiksoppervlakte
  • D Energielabel D

Beschrijving

Ruim, licht en direct comfortabel wonen!
Dit fijne appartement aan de Floreslaan 62 in Ede biedt een lichte woonkamer, drie slaapkamers en twee balkons. De praktische indeling, aparte berging en fijne locatie dichtbij winkels, scholen, parken en uitvalswegen maken dit de ideale plek om je thuis te voelen.

Ligging
Floreslaan 62 in Ede is gelegen in een rustige woonomgeving waar comfortabel wonen en dagelijks gemak samenkomen. Voor boodschappen, winkels en andere voorzieningen hoef je niet ver: winkelcentrum Het Rozenplein bevindt zich op loopafstand. Ook basisscholen en speelplekken liggen op korte afstand.
De ligging is bovendien zeer gunstig voor forenzen. Met snelle aansluiting op de A12 en A30 zijn steden als Utrecht, Arnhem en Amersfoort eenvoudig bereikbaar, en ook het openbaar vervoer is goed geregeld. Voor ontspanning en natuur ben je zo in het Proosdijpark of in het uitgestrekte Veluwse landschap. Een fijne woonlocatie voor wie rustig wil wonen, met alles wat je nodig hebt dichtbij!

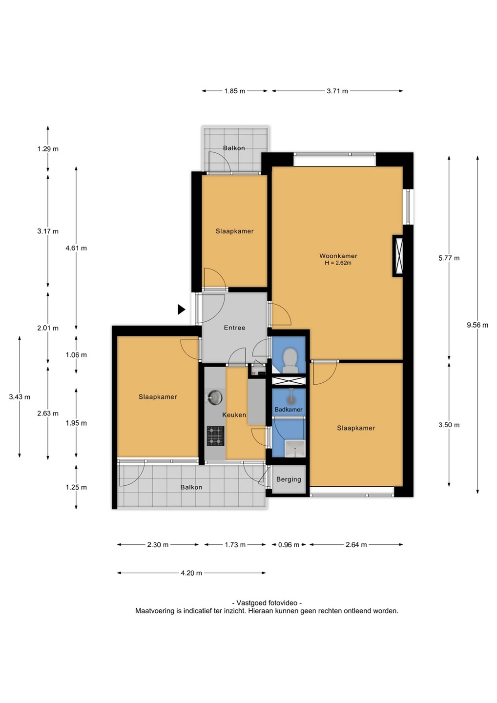
Appartement
Dit praktisch ingedeelde appartement op de derde woonlaag biedt een verrassend fijne leefruimte en 3 slaapkamers. De lichte woonkamer vormt het hart van het appartement en biedt voldoende ruimte voor een royale zithoek en eethoek, met een fijne verbinding naar een slaapkamer of een eventuele werkruimte.
Het appartement beschikt over drie slaapkamers, die flexibel zijn in te richten als slaap-, werk- of hobbykamer. De keuken is aan de achterzijde gelegen en sluit aan op het balkon aan de achterzijde. De badkamer en het aparte toilet maken het geheel praktisch en compleet.
Een groot pluspunt zijn de twee balkons, waardoor je op verschillende momenten van de dag van de buitenlucht kunt genieten. De woning is volledig voorzien van dubbel glas en heeft houten en kunststof kozijnen, wat bijdraagt aan een warme uitstraling. Daarnaast is er een actieve VvE, wat zorgt voor goed onderhoud en prettig wonen.
Tevens is er een aparte berging en een gemeenschappelijke berging/fietsenstalling op de begane grond aanwezig.

Highlights
-Ruim en functioneel ingedeeld appartement met meerdere slaapkamers;
-Twee balkons, zodat je op verschillende momenten van de dag buiten kunt zitten;
-Praktische indeling met aparte badkamer, toilet en berging
-Nabij winkels, het Proosdijpark en uitvalswegen (A12 en A30).

Aanvaarding/oplevering in overleg.

Deze informatie is door ons met de nodige zorgvuldigheid samengesteld. Onzerzijds wordt echter geen enkele aansprakelijkheid aanvaard voor enige onvolledigheid, onjuistheid of anderszins, dan wel de gevolgen daarvan. Alle opgegeven maten en oppervlakten zijn indicatief.
In de koopovereenkomst worden de ouderdomsclausule en de niet-zelfbewoningsclausule opgenomen.

Kaart

Kenmerken

Overdracht

Referentienummer
00104
Vraagprijs
€ 250.000,- k.k.
Servicekosten
€ 121,66
Inrichting
Niet gestoffeerd
Inrichting
Niet gemeubileerd
Status
Verkocht
Aanvaarding
In overleg
Aangeboden sinds
Maandag 12 januari 2026
Laatste wijziging
Donderdag 19 februari 2026

Bouw

Type object
Appartement, portiekwoning
Woonlaag
3e woonlaag
Soort bouw
Bestaande bouw
Bouwperiode
1960
Dakbedekking
Bitumen
Type dak
Platdak
Isolatievormen
Dubbel glas

Oppervlaktes en inhoud

Woonoppervlakte
59 m²
Inhoud
160 m³
Oppervlakte externe bergruimte
6 m²
Oppervlakte gebouwgebonden buitenruimte
8 m²

Indeling

Aantal bouwlagen
1
Aantal kamers
4 (waarvan 3 slaapkamers)
Aantal badkamers
1 (en 1 apart toilet)

Locatie

Ligging
Aan rustige weg
Nabij school
Nabij snelweg
Nabij winkelcentrum

Energieverbruik

Energielabel
D

CV ketel

CV ketel
Combi-ketel
Warmtebron
Gas
Eigendom
Eigendom

Uitrusting

Warm water
CV-ketel
Verwarmingssysteem
Centrale verwarming
Badkamervoorzieningen
Douche
Wastafel
Heeft een balkon
Ja
Heeft schuur/berging
Ja

Vereniging van Eigenaren

Ingeschreven bij de KvK
Ja
Jaarlijkse vergadering
Ja
Periodieke bijdrage
Ja
Reservefonds
Ja
Meer jaren onderhoudsplan
Ja
Onderhoudsverwachting
Ja
Opstal verzekering
Ja

Kadastrale gegevens

Kadastrale aanduiding
Ede K 14441
Omvang
Appartementsrecht of complex
Eigendomsituatie
Eigen grond
Indexnummer
17
Kadastrale aanduiding
Ede K 14441
Omvang
Appartementsrecht of complex
Eigendomsituatie
Eigen grond
Indexnummer
33

Media

Plattegronden