Verkocht:Jan Rijksenstraat 37, 1335 NL Almere - Foto
Verkocht
+36

Jan Rijksenstraat 37 1335 NL Almere

  • Woonhuis
  • 5 kamers
  • 4 slaapkamers
  • 1 badkamers
  • Bouwjaar 2000
  • 144 m² perceeloppervlakte
  • 133 m² gebruiksoppervlakte
  • A+ Energielabel A+

Beschrijving

Duurzame eengezinswoning – Eerlijk Bieden principe Korte samenvatting:
Moderne tussenwoning met 4 slaapkamers, luxe tuinkamer, zonnepanelen, airco en laadpaal.

Bieden vanaf € 449.000 – Eerlijk Bieden!
Deze woning wordt aangeboden volgens het Eerlijk Bieden-principe, zodat je weet dat het biedproces eerlijk en transparant verloopt.
Ben je op zoek naar een energiezuinige, ruime gezinswoning met slimme woonoplossingen? Deze moderne tussenwoning in het groene Almere Buiten biedt alles: vier slaapkamers, een luxe en volledig geïsoleerde tuinkamer, airconditioning in alle kamers, 16 zonnepanelen, HR-glas, een eigen oprit en een krachtige 11 kW 3-fase laadpaal. Hier woon je toekomstbestendig, comfortabel én duurzaam.

Pluspunten op een rij:
• Bieden vanaf € 449.000 – via het Eerlijk Bieden-principe • Woonoppervlakte: 133,4 m² • 4 slaapkamers • Volledig geïsoleerde tuinkamer – extra leefruimte voor elk seizoen • 16 zonnepanelen – lage energielasten • Airco met inverterfunctie in alle kamers (koelen & verwarmen, via Wifi) • Luxe badkamer met vloerverwarming en slimme radiator • Moderne stalen deuren met melkglas – stijlvol en licht • HR-glas en uitstekende isolatie • Verwarming via airco’s, CV en elektrische voorzieningen • Vernieuwde mechanische ventilatie (Itho Daalderop met vochtsensor) • Eigen oprit met parkeergelegenheid en 11 kW 3-fase laadpaal • CV-ketel Vaillant CW6 (2019, huur – overname of afkoop mogelijk) • Rustige, kindvriendelijke wijk nabij station Almere Oostvaarders, scholen, winkels en natuurgebied Oostvaardersplassen • Snelle oplevering mogelijk ________________________________________
Een thuis waar alles klopt…
Stel je voor: je rijdt na je werk je eigen oprit op, sluit je elektrische auto aan op de krachtige 11 kW laadpaal, en loopt naar binnen. In de lichte woonkamer ervaar je direct de ruimte: door het verwijderen van de trapkast en het verkorten van de hal is de indeling optimaal benut. De stalen deur met melkglas geeft een moderne uitstraling, terwijl de doorlopende vloer naar de tuinkamer zorgt voor een harmonieuze verbinding tussen binnen en buiten.

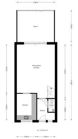
Indeling
Begane grond
Bij aankomst parkeer je moeiteloos op je eigen oprit – ideaal, zeker met de geïntegreerde 11 kW 3-fase laadpaal voor je elektrische auto. De entree is netjes afgewerkt, met direct links een modern toilet voorzien van een hangcloset, een nis met stijlvolle inbouw en eigentijdse betegeling.
Via een stijlvolle stalen deur met melkglas stap je de woonkamer binnen. Het woongedeelte is bewust vergroot door de trapkast te verwijderen en de gang in te korten, waardoor er een open en luchtige leefruimte is ontstaan. De grote ramen aan de achterzijde laten overvloedig daglicht binnen en bieden uitzicht op de verzorgde achtertuin.
Aan de voorzijde bevindt zich de keuken in L-opstelling, voorzien van een ruim werkblad, veel kastruimte en kwalitatieve apparatuur. Door de praktische indeling kook je efficiënt, terwijl je vanuit de keuken gezellig contact hebt met de woonkamer.
Aan de achterzijde van de woning is de volledig geïsoleerde tuinkamer aangebouwd. Deze ruimte heeft dezelfde vloer als de woonkamer, wat een prachtig doorlopend geheel vormt. Dankzij de airco met inverterfunctie (koelen & verwarmen) en de hoge isolatiewaarde is dit een ruimte die je het hele jaar door kunt gebruiken: als tweede woonkamer, speelruimte voor de kinderen, een inspirerende thuiswerkplek of een sfeervolle eetkamer. Via openslaande deuren stap je direct de tuin in.

Eerste verdieping
Een vaste trap leidt naar de eerste etage, waar zich drie volwaardige slaapkamers bevinden. Alle kamers zijn voorzien van airco’s (koelen en verwarmen), die je gemakkelijk via Wifi kunt bedienen. Grote ramen zorgen voor een prettige lichtinval en de kamers zijn strak afgewerkt, waardoor ze direct te gebruiken zijn als slaap-, werk- of hobbyruimte.
De badkamer is volledig vernieuwd en straalt luxe uit. Hier vind je een ruime inloopdouche met glazen wand, een dubbele wastafel met modern meubel, een tweede toilet, elektrische vloerverwarming en een via Wifi bedienbare handdoekradiator. Alles is uitgevoerd in hoogwaardige materialen en een stijlvolle kleurstelling.

Tweede verdieping
Op de tweede verdieping vind je een ruime vierde slaapkamer, perfect als master bedroom, logeerplek of juist als extra werkkamer. De overloop biedt praktische aansluitingen voor wasmachine en droger en veel bergruimte achter de knieschotten.
Op deze verdieping bevinden zich ook de technische voorzieningen: de Vaillant CW6 CV-ketel (2019, huur – overname of afkoop mogelijk) en de vernieuwde Itho Daalderop mechanische ventilatie met vochtsensor. Samen zorgen ze voor een gezond, comfortabel en energiezuinig binnenklimaat.

Tuin
De achtertuin is onderhoudsvriendelijk aangelegd met strakke sierbestrating en is volledig omsloten, zodat je optimaal van je privacy geniet. De ligging maakt het een heerlijke plek om buiten te eten, te ontspannen of te spelen. Er is een houten berging met elektra, ideaal voor het stallen van fietsen, het opbergen van tuingereedschap of als extra opslagruimte. De tuin is bereikbaar via zowel de tuinkamer als via een handige achterom.

Locatie
De woning ligt in een rustige, kindvriendelijke wijk in Almere Buiten.
• Openbaar vervoer: Station Almere Oostvaarders ligt op loopafstand. Met de trein ben je snel in Amsterdam of Lelystad.
• Voorzieningen: In de directe omgeving vind je basisscholen, een gezondheidscentrum, huisarts, apotheek en diverse supermarkten.
• Ontspanning & natuur: Sportfaciliteiten en winkels zijn dichtbij, en het prachtige natuurgebied Oostvaardersplassen ligt om de hoek – ideaal voor een wandeling, fietstocht of om even tot rust te komen.
Aanvaarding: In overleg – snelle oplevering mogelijk.

ENGELS:

Title:
Sustainable Family Home – Fair Bidding Principle Short Summary:
Modern terraced house with 4 bedrooms, luxury garden room, solar panels, air conditioning, and EV charging point. Fair Bidding from €449K!

Bidding from €449,000 – Fair Bidding!
This property is offered under the Fair Bidding principle, ensuring that the bidding process is honest and transparent.
Are you looking for an energy-efficient, spacious family home with smart living solutions? This modern terraced house in the green district of Almere Buiten has it all: four bedrooms, a luxurious fully insulated garden room, air conditioning in every room, 16 solar panels, HR-glass, a private driveway, and a powerful 11 kW 3-phase charging station. A future-proof, comfortable, and sustainable place to call home.

Key Features:
• Bidding from €449,000 – under the Fair Bidding principle • Living area: 133.4 m² • 4 bedrooms • Fully insulated garden room – extra living space for all seasons • 16 solar panels – low energy costs • Air conditioning with inverter function in all rooms (cooling & heating, Wi-Fi enabled) • Luxury bathroom with underfloor heating and smart radiator • Modern steel doors with frosted glass – stylish and bright • HR-glass and excellent insulation • Heating via air conditioning units, central heating, and electric systems • Renewed mechanical ventilation (Itho Daalderop with humidity sensor) • Private driveway with parking and 11 kW 3-phase charging station • Vaillant CW6 central heating boiler (2019, rental – takeover or buyout possible) • Quiet, child-friendly neighbourhood near Almere Oostvaarders station, schools, shops, and Oostvaardersplassen nature reserve • Quick completion possible ________________________________________
A home where everything falls into place… Imagine this: after work, you park your car on your own driveway, plug in your electric vehicle to the powerful 11 kW charging station, and step inside. In the bright living room, you immediately notice the sense of space – thanks to the removal of the stair cupboard and shortening of the hallway, the layout is optimally used. The steel door with frosted glass adds a modern touch, while the continuous flooring into the garden room creates a seamless flow between indoors and outdoors.

Layout
Ground Floor
Upon arrival, you park effortlessly on your own driveway – ideal, especially with the integrated 11 kW 3-phase charging station for your electric car. The entrance is neatly finished, with a modern toilet featuring a wall-hung WC, a stylish recessed niche, and contemporary tiling.
Through a modern steel door with frosted glass, you enter the living room. The space has been thoughtfully enlarged by removing the stair cupboard and shortening the hallway, resulting in an open and airy living area. Large rear windows let in abundant daylight and offer a view of the well-maintained back garden.
At the front, the L-shaped kitchen offers a generous worktop, ample storage, and quality appliances. The practical layout allows for efficient cooking, while still keeping in touch with the living area.
At the rear, the fully insulated garden room extends the living space. With the same flooring as the living room, it forms a harmonious whole. Thanks to the inverter air conditioning (cooling & heating) and high insulation value, this is a year-round usable space – ideal as a second living room, children’s play area, inspiring home office, or cosy dining room. French doors lead directly into the garden.
________________________________________
First Floor
A fixed staircase leads to the first floor with three full-sized bedrooms. All are equipped with Wi-Fi-controlled air conditioning units for heating and cooling. Large windows provide plenty of natural light, and the rooms are neatly finished, ready to use as bedrooms, workspaces, or hobby rooms.
The fully renovated bathroom exudes luxury, featuring a spacious walk-in shower with glass partition, double washbasin with modern vanity, second toilet, electric underfloor heating, and a Wi-Fi-controlled towel radiator. All finished in high-quality materials and a stylish colour scheme.

Second Floor
The second floor houses a spacious fourth bedroom – perfect as a master bedroom, guest room, or extra office. The landing offers practical connections for washing machine and dryer, plus ample storage behind the knee walls.
This floor also contains the technical installations: the Vaillant CW6 central heating boiler (2019, rental – takeover or buyout possible) and the renewed Itho Daalderop mechanical ventilation system with humidity sensor. Together they ensure a healthy, comfortable, and energy-efficient indoor climate.

Garden
The back garden features low-maintenance landscaping with neat paving and full enclosure for maximum privacy. A wonderful spot for outdoor dining, relaxing, or children’s play. A wooden shed with electricity provides storage for bikes, gardening tools, or other items. The garden can be accessed from both the garden room and a back entrance.

Location
This home is situated in a quiet, family-friendly area of Almere Buiten.
• Public Transport: Almere Oostvaarders Station is within walking distance, offering quick train connections to Amsterdam or Lelystad.
• Amenities: Nearby you’ll find primary schools, a health centre, GP, pharmacy, and several supermarkets.
• Leisure & Nature: Sports facilities and shops are close at hand, and the beautiful Oostvaardersplassen nature reserve is just around the corner – ideal for walking, cycling, or simply unwinding.

Availability: By arrangement – quick completion possible.

Kaart

Kenmerken

Overdracht

Referentienummer
00089
Vraagprijs
€ 449.000,- k.k.
Status
Verkocht
Aanvaarding
In overleg
Aangeboden sinds
Maandag 11 augustus 2025
Laatste wijziging
Dinsdag 7 oktober 2025

Bouw

Type object
Woonhuis, eengezinswoning, tussenwoning
Soort bouw
Bestaande bouw
Bouwperiode
2000
Dakbedekking
Dakpannen
Type dak
Zadeldak
Isolatievormen
Dakisolatie
HR-glas

Oppervlaktes en inhoud

Perceeloppervlakte
144 m²
Woonoppervlakte
133,4 m²
Inhoud
388 m³
Oppervlakte externe bergruimte
6,8 m²

Indeling

Aantal bouwlagen
3
Aantal kamers
5 (waarvan 4 slaapkamers)
Aantal badkamers
1 (en 1 apart toilet)

Locatie

Ligging
In woonwijk

Tuin

Type
Voortuin
Oriëntering
Oosten
Staat
Normaal
Tuin 2 - Type
Achtertuin
Tuin 2 - Hoofdtuin
Ja
Tuin 2 - Oriëntering
West
Tuin 2 - Heeft een achterom
Ja
Tuin 2 - Staat
Normaal

Energieverbruik

Energielabel
A+

CV ketel

CV ketel
Vaillant CW6, 2019
Warmtebron
Gas
Bouwjaar
2019
Combiketel
Ja
Eigendom
Huur

Uitrusting

Aantal parkeerplaatsen
1
Warm water
Centrale voorziening
CV-ketel
Verwarmingssysteem
Airconditioning
Centrale verwarming
Elektrische verwarming
Ventilatie methode
Mechanische ventilatie
Badkamervoorzieningen
Douche
Dubbele wastafel
Inloopdouche
Toilet
Wastafelmeubel
Heeft airco
Ja
Tuin aanwezig
Ja
Heeft schuur/berging
Ja
Heeft een schuifpui
Ja
Heeft zonnepanelen
Ja
Heeft ventilatie
Ja

Kadastrale gegevens

Kadastrale aanduiding
Almere B 3900
Perceeloppervlakte
144 m²
Omvang
Geheel perceel
Eigendomsituatie
Eigen grond