Verkocht:Grotestraat 124, 6711 AP Ede - Foto
Verkocht
+28

Grotestraat 124 6711 AP Ede

  • Appartement
  • 2 kamers
  • 1 slaapkamer(s)
  • 1 badkamer
  • Bouwjaar 1998
  • 44 m² gebruiksoppervlakte

Beschrijving

Op zoek naar een fijne starterswoning met een speelse indeling op een top locatie? Dit gezellige appartement aan de Grotestraat 124 in Ede is absoluut een bezichtiging waard!

Ligging
De ligging van dit appartement is echt uniek! Je woont in een rustig en gezellig stukje van het oude centrum van Ede nabij alle dagelijkse voorzieningen. Aan de ene kant wandel je zo naar het gezellige winkelcentrum en aan de andere kant loop je binnen enkele minuten het Edese Bos in.

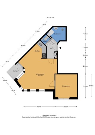
Indeling
Appartement
Gelegen op de 2e woonlaag betreed je het appartement via de beveiligde entree.
De indeling van het appartement is als volgt.
Trappenhuis met toegang tot de entree van de woning. In de woning kom je in de hal die toegang biedt tot alle ruimtes.
De woonkamer biedt een verrassend speelse indeling en er is altijd wat te zien dankzij de vele raamkozijnen. Vanuit de woonkamer heb je toegang tot het balkon. De open keuken beschikt over apparatuur waaronder een 4-pits gascomfort en een afzuigkap.
Het appartement beschikt verder over een toiletruimte, een fijne slaapkamer, een badkamer met douche, wastafel en wasmachine-aansluiting.

Daarnaast is er een inpandige berging met elektra aanwezig, ideaal voor het stallen van fietsen.

Highlights
- Rustig gelegen in een gezellig stukje oud Ede nabij winkels en het uitgestrekte
Edese Bos;
- Speelse indeling met veel lichtinval;
- Eigen balkon, toegankelijk vanuit de woonkamer;
- Badkamer en een separaat toilet;
- Eigen berging in de onderbouw;
- Kleine VvE, kosten € 73,- per maand.

Aanvaarding/oplevering in overleg. In de koopakte zal de niet zelfbewoningsclausule worden opgenomen.

Deze informatie is door ons met de nodige zorgvuldigheid samengesteld. Onzerzijds wordt echter geen enkele aansprakelijkheid aanvaard voor enige onvolledigheid, onjuistheid of anderszins, dan wel de gevolgen daarvan. Alle opgegeven maten en oppervlakten zijn indicatief.

Kaart

Kenmerken

Overdracht

Referentienummer
00085
Vraagprijs
€ 249.000,- k.k.
Status
Verkocht
Aanvaarding
In overleg
Aangeboden sinds
Woensdag 30 juli 2025
Laatste wijziging
Woensdag 15 oktober 2025

Bouw

Type object
Appartement, portiekflat
Woonlaag
2e woonlaag
Soort bouw
Bestaande bouw
Bouwperiode
1998
Dakbedekking
Bitumen
Dakpannen
Type dak
Samengesteld
Isolatievormen
Volledig geïsoleerd

Oppervlaktes en inhoud

Woonoppervlakte
44 m²
Inhoud
147 m³
Oppervlakte externe bergruimte
4 m²
Oppervlakte gebouwgebonden buitenruimte
3 m²

Indeling

Aantal bouwlagen
1
Aantal kamers
2 (waarvan 1 slaapkamer)
Aantal badkamers
1 (en 1 apart toilet)

Locatie

Ligging
Aan rustige weg
In bosrijke omgeving
In centrum

CV ketel

CV ketel
Intergas
Warmtebron
Gas
Bouwjaar
2017
Combiketel
Ja
Eigendom
Eigendom

Uitrusting

Warm water
CV-ketel
Verwarmingssysteem
Centrale verwarming
Badkamervoorzieningen
Douche
Wasmachineaansluiting
Wastafel
Heeft een balkon
Ja
Heeft schuur/berging
Ja

Vereniging van Eigenaren

Ingeschreven bij de KvK
Ja
Periodieke bijdrage
Ja
Reservefonds
Ja
Opstal verzekering
Ja

Kadastrale gegevens

Kadastrale aanduiding
Ede K 15710
Omvang
Appartementsrecht of complex
Eigendomsituatie
Eigen grond
Indexnummer
7
Kadastrale aanduiding
Ede K 15710
Omvang
Appartementsrecht of complex
Eigendomsituatie
Eigen grond
Indexnummer
5