Verkocht:Driehoek 21, 6711 DH Ede - Foto
Verkocht
+51

Driehoek 21 6711 DH Ede

  • Woonhuis
  • 5 kamers
  • 4 slaapkamers
  • 1 badkamers
  • Bouwjaar 1948
  • 355 m² perceeloppervlakte
  • 136 m² gebruiksoppervlakte
  • C Energielabel C

Beschrijving

Welkom bij deze charmante hoekwoning in het hart van Ede gelegen aan de Driehoek 21. De woning is uitgerust met onder andere 5 slaapkamers, waarvan er 1 op de begane grond gelegen is, een riante zijtuin met een gezellige veranda en alle voorzieningen binnen handbereik. Plan een bezichtiging in en kom eens kijken!

Ligging:
Deze gezellige woning aan de Driehoek 21 ligt in een rustige straat maar wel in het hart en centrum van Ede, omringd door de prachtige natuur van de Veluwe. Met goede verbindingen naar Arnhem, Utrecht en Amsterdam ben je snel waar je moet zijn. Het gezellige centrum van Ede biedt diverse winkels, scholen en sportfaciliteiten, ideaal voor jong en oud.

Indeling:
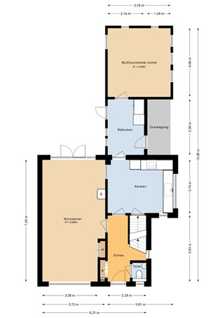
Begane grond:
Je komt de woning binnen via de riante entree waar zich een provisieruimte, het toilet en de trap naar de 1e verdieping bevindt. Vanuit hier heb je toegang tot de sfeervolle woonkamer en de ruime keuken. De woonkamer is voorzien van een sfeervolle houtkachel en veel natuurlijk licht dankzij de openslaande tuindeuren met grote raampartijen. De keuken is uitgerust met enig inbouwapparatuur zoals de inductie kookplaat, vaatwasser, oven en afzuigkap.

Naast de keuken tref je de bijkeuken en de multifunctionele ruimte. Deze ruimte kan ingericht worden naar eigen smaak en voor verschillende doeleinden gebruikt worden zoals werken aan huis of slapen op de begane grond.

1e verdieping:
Grenzend aan de overloop van de 1e verdieping zijn er 3 slaapkamers en de badkamer gelegen. Alle 3 de slaapkamers bieden ieder voor zich privacy, rust en comfort. De badkamer is voorzien van een wastafelmeubel met spiegel, een moderne inloopdouche en een toilet.

2e verdieping:
Op de 2e verdieping is een extra slaapkamer gelegen. Deze is voorzien van veel ruimte, grote raampartijen en een pantry op de overloop.

Tuin:
De riante zijtuin is gelegen op het oosten en is voorzien van sierbestrating en een veranda waar je het hele jaar heerlijk buiten kunt zitten. De echte eyecatcher is overdekte jacuzzi in de besloten achtertuin met veel privacy.

HIGHLIGHTS:
Voorzien van rolluiken
Jacuzzi in de besloten achtertuin
Riante zijtuin op het oosten
Ligging in het hart van Ede met alle voorzieningen binnen handbereik
Energielabel C
5 slaapkamers, waarvan 1 op de begane grond
Sfeervolle woonkamer met houtkachel en openslaande tuindeuren
Perceelsoppervlakte: 355 m2
2 Parkeerplaatsen op eigen terrein.
Aanvaarding/oplevering in overleg.

Deze informatie is door ons met de nodige zorgvuldigheid samengesteld. Onzerzijds wordt echter geen enkele aansprakelijkheid aanvaard voor enige onvolledigheid, onjuistheid of anderszins, dan wel de gevolgen daarvan. Alle opgegeven maten en oppervlakten zijn indicatief.

Kaart

Kenmerken

Overdracht

Referentienummer
00068
Vraagprijs
€ 589.000,- k.k.
Status
Verkocht
Aanvaarding
In overleg
Aangeboden sinds
Woensdag 19 maart 2025
Laatste wijziging
Woensdag 2 juli 2025

Bouw

Type object
Woonhuis, eengezinswoning, hoekwoning
Soort bouw
Bestaande bouw
Bouwperiode
1948
Dakbedekking
Dakpannen
Type dak
Zadeldak
Isolatievormen
Ankerloze spouwmuren

Oppervlaktes en inhoud

Perceeloppervlakte
355 m²
Woonoppervlakte
135,85 m²
Inhoud
516 m³
Oppervlakte overige inpandige ruimten
9,38 m²
Oppervlakte externe bergruimte
20,04 m²
Oppervlakte gebouwgebonden buitenruimte
4,59 m²

Indeling

Aantal bouwlagen
3 (en 1 kelder)
Aantal kamers
5 (waarvan 4 slaapkamers)
Aantal badkamers
1 (en 1 apart toilet)

Locatie

Ligging
Aan rustige weg
In centrum
In woonwijk

Tuin

Type
Voortuin
Staat
Normaal
Tuin 2 - Type
Achtertuin
Tuin 2 - Hoofdtuin
Ja
Tuin 2 - Oriëntering
Oosten
Tuin 2 - Heeft een achterom
Ja
Tuin 2 - Staat
Prachtig aangelegd

Energieverbruik

Energielabel
C

CV ketel

CV ketel
Intergas cv combiketel
Warmtebron
Gas
Bouwjaar
2020
Eigendom
Eigendom

Uitrusting

Aantal parkeerplaatsen
2
Warm water
CV-ketel
Verwarmingssysteem
Centrale verwarming
Houtkachel
Keukenvoorzieningen
Inbouwapparatuur
Badkamervoorzieningen
Inloopdouche
Toilet
Wastafelmeubel
Heeft een rookkanaal
Ja
Tuin aanwezig
Ja
Heeft een jacuzzi
Ja
Heeft rolluiken
Ja
Heeft schuur/berging
Ja

Kadastrale gegevens

Kadastrale aanduiding
Ede K 8020
Perceeloppervlakte
355 m²
Omvang
Geheel perceel
Eigendomsituatie
Eigen grond