Verkocht:Akulaan 60, 6717 XN Ede - Foto
Verkocht
+49

Akulaan 60 6717 XN Ede

  • Woonhuis
  • 6 kamers
  • 5 slaapkamers
  • 1 badkamers
  • Bouwjaar 2022
  • 158 m² perceeloppervlakte
  • 175 m² gebruiksoppervlakte
  • A+++ Energielabel A+++

Beschrijving

Akulaan 60, Ede – Eigentijdse luxe en comfort.

De locatie van deze woning kent een rijke historie. In 1919 is gestart met de bouw van de Enka fabriek voor de productie van kunstzijde. Het terrein bleef altijd verborgen achter de, op een vesting lijkende, strakke bakstenen buitengevel. Honderd jaar na dato is deze buitenmuur het overgebleven historisch bewijs uit vervlogen tijden. Deze historische gevel geeft nu het gezicht aan onder andere Akulaan 60.

Welkom bij deze stijlvolle en eigentijdse woning aan de Akulaan 60 in Ede. Met maar liefst 175 m² wooncomfort biedt deze woning alles wat je zoekt: een hoogwaardige afwerking, een energiezuinig ontwerp met nauwelijks energiekosten en oog voor detail in elk aspect. De woning beschikt over vijf slaapkamers en een zonnige tuin op het zuiden, ideaal om het hele jaar door te genieten. Hier woon je in een huis dat tot in de puntjes is afgewerkt en klaar staat om direct te betrekken.

Ligging
Wonen op "Op Enka" betekent genieten van een unieke woonwijk met een rijke historie, karakteristieke monumentale gebouwen en een prachtige ligging vlak bij de bossen en het intercitystation Ede-Wageningen. De wijk biedt tal van voorzieningen, zoals een basisschool met buitenschoolse opvang, het sfeervolle proeflokaal De Proefzaak en het volkstuinencomplex VAT. Net over het spoor bevinden zich bakkerij Jorisbrood, koffiezaak 1,5 Bar voor goede koffie en MTB verhuur en de gezellige koffie- en lunchplek Geijt. Daarnaast grenst de wijk aan landgoed Hoekelum, waar je de biologische winkel Veld en Beek vindt. Voor overige winkelvoorzieningen ben je binnen enkele minuten fietsen op je bestemming.
De woning biedt een vrij uitzicht aan de voorzijde op het Sysseltse bos, dit uitzicht is blijvend omdat er tegenover niet meer gebouwd gaat worden. Bovendien wordt op deze locatie een prachtig park gerealiseerd, zoals weergegeven in het inrichtingsplan van de gemeente Ede.
Dankzij de nieuwe voetgangers- en fietsbrug over het spoor is de wijk verbonden met het uitgestrekte Sysseltse bos en de Ginkelse heide, wat volop mogelijkheden biedt voor wandel- en fietsliefhebbers. Kortom, een perfecte combinatie van historie, natuur en moderne voorzieningen!

Indeling
Begane grond
Welkom in de entree van deze woning! Vanaf hier krijg je toegang naar de speels ingedeelde woonkamer en keuken. De keuken in moderne opstelling is uitgerust met hoogwaardige apparatuur, waaronder een Bora inductiekookplaat met geïntegreerde downdraft afzuiging, een Siemens stoomoven en conventionele oven, een koelkast, vrieskast, Siemens vaatwasser en een Quooker voor direct kokend water. Daarnaast is de keuken voorzien van een praktische en gezellige eetbar/eiland. De keuken en woonkamer worden subtiel gescheiden door de trapopgang naar de eerste verdieping en de toiletruimte, wat zorgt voor een dynamische en functionele indeling. De woonkamer valt op door de grote raampartijen, die zorgen voor een overvloed aan natuurlijk licht. De ruime woonkamer biedt volop mogelijkheden voor een comfortabel zitgedeelte en een royale eettafel. Dankzij de open indeling en grote raampartijen voelt de ruimte licht en uitnodigend aan. Hier kun je een gezellige zithoek creëren om te ontspannen en tegelijkertijd voldoende plek hebben voor een grote eettafel waar je met familie en vrienden kunt genieten van gezamenlijke maaltijden. De ideale combinatie van stijl en functionaliteit! Via de openslaande deuren krijg je direct toegang tot de achtertuin, een heerlijke plek om te ontspannen en te genieten van het buitenleven.

De begane grond is afgewerkt met een stijlvolle en duurzame houten visgraatvloer, die zorgt voor een luxe en warme uitstraling.

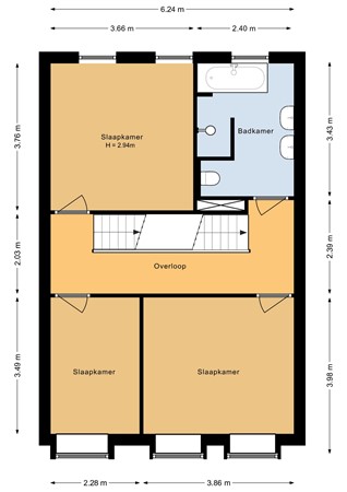
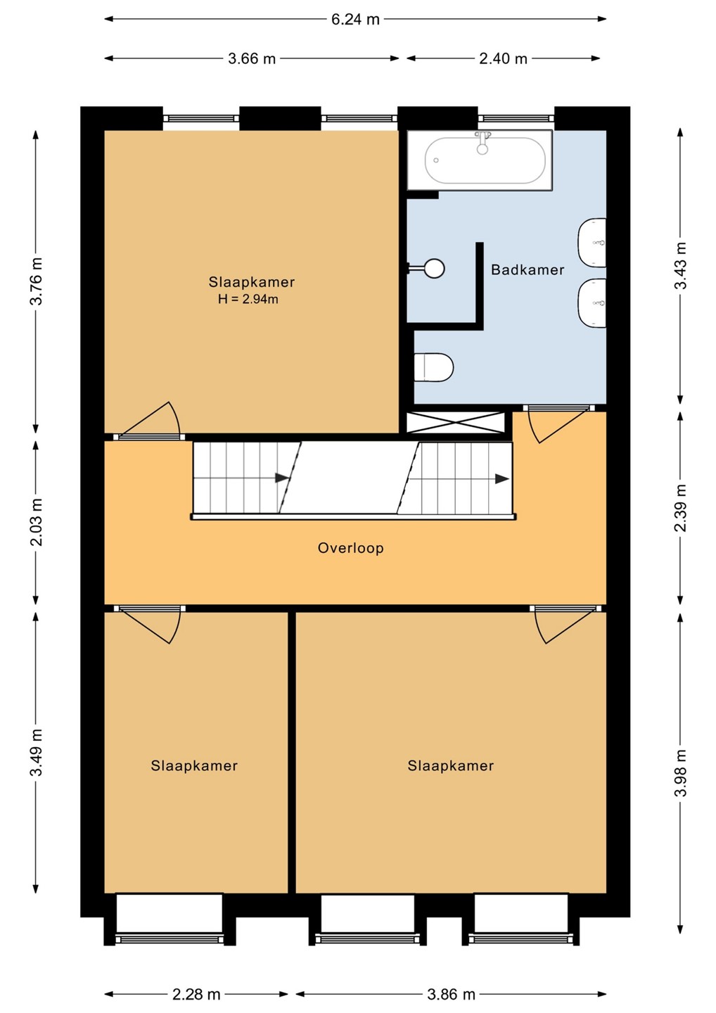
1ste verdieping
Op de eerste verdieping bevindt zich een ruime overloop die toegang biedt tot drie slaapkamers en de badkamer. De slaapkamers zijn licht en van goede afmetingen, geschikt voor zowel hoofdslaapkamer, kinderkamer en/of een thuiswerkplek. De badkamer is modern en compleet uitgerust, voorzien van een royale inloopdouche, een comfortabel ligbad met handdouche, dubbele wastafel, designradiator en een toilet. Een heerlijke ruimte die luxe en comfort biedt.

2de verdieping
Deze verdieping is bereikbaar via een vaste trap en biedt verrassend veel ruimte. Op de overloop vind je de aansluitingen voor de wasmachine en droger, praktisch en centraal gelegen. Daarnaast zijn er twee complete slaapkamers van prima formaat, beide met goede lichtinval en mogelijkheden om geheel naar wens in te richten. Eén van de slaapkamers beschikt bovendien over een handige kast/bergruimte, ideaal voor extra opbergmogelijkheden. Een veelzijdige verdieping die perfect aansluit bij de rest van de woning!

De woning beschikt over een modern domoticasysteem, waarmee je verschillende functies eenvoudig via een app kunt bedienen.

De tuin
De achtertuin, bereikbaar via een achterom, van 56 m2 biedt de ideale ruimte om te ontspannen, te barbecueën met vrienden of om de kinderen vrijuit te laten spelen. Geniet van de buitenlucht en pluk door het jaar heen onder andere appels, vijgen en bramen uit eigen tuin. De houten berging is voorzien van elektra en biedt voldoende opbergruimte voor, o.a. tuingereedschap en fietsen.

Dit prachtige woonhuis in Ede wacht op jou! Ben jij op zoek naar een luxe en moderne woning waar je gelijk in kunt trekken? Aarzel niet en plan vandaag nog een bezichtiging!

Higlights:
Energielabel: A+++;
14 Zonnepanelen;
Verwarming middels stadsverwarming;
Eigen ruime berging in de achtertuin;
Park in aanleg aan de voorzijde;
Gratis parkeren voor de deur;
Op loopafstand van de uitgestrekte bossen en het intercitystation Ede-Wageningen;
Ligging in een uniek stukje Ede met een rijke historie. Deze historie is zichtbaar en voelbaar in de wijk;
Aanvaarding/oplevering in overleg.

De Algemene Akte van 9 november 2020, maakt onlosmakend deel uit van de koopovereenkomst.

Deze informatie is door ons met de nodige zorgvuldigheid samengesteld. Onzerzijds wordt echter geen enkele aansprakelijkheid aanvaard voor enige onvolledigheid, onjuistheid of anderszins, dan wel de gevolgen daarvan. Alle opgegeven maten en oppervlakten zijn indicatief.

Kaart

Kenmerken

Overdracht

Referentienummer
00062
Vraagprijs
€ 779.000,- k.k.
Status
Verkocht
Aanvaarding
In overleg
Aangeboden sinds
Vrijdag 31 januari 2025
Laatste wijziging
Zondag 2 maart 2025

Bouw

Type object
Woonhuis, herenhuis, tussenwoning
Soort bouw
Bestaande bouw
Bouwperiode
2022
Dakbedekking
Verzinkt
Type dak
Samengesteld
Keurmerken
Algemene woning keur
Isolatievormen
Volledig geïsoleerd

Oppervlaktes en inhoud

Perceeloppervlakte
158 m²
Woonoppervlakte
175 m²
Inhoud
695 m³
Oppervlakte externe bergruimte
8 m²

Indeling

Aantal bouwlagen
3
Aantal kamers
6 (waarvan 5 slaapkamers)
Aantal badkamers
1 (en 1 apart toilet)

Locatie

Ligging
Aan bosrand
Aan park
In bosrijke omgeving
In woonwijk

Tuin

Type
Achtertuin
Hoofdtuin
Ja
Oriëntering
Zuiden
Heeft een achterom
Ja

Energieverbruik

Energielabel
A+++

Uitrusting

Warm water
Stadsverwarming
Verwarmingssysteem
Stadsverwarming
Vloerverwarming (gedeeltelijk)
Ventilatie methode
Mechanische ventilatie
Keukenvoorzieningen
Inbouwapparatuur
Badkamervoorzieningen
Dubbele wastafel
Inloopdouche
Ligbad
Toilet
Glasvezelaansluiting aanwezig
Ja
Tuin aanwezig
Ja
Heeft schuur/berging
Ja
Heeft zonnepanelen
Ja
Heeft ventilatie
Ja

Kadastrale gegevens

Kadastrale aanduiding
Ede C 5500
Perceeloppervlakte
158 m²
Omvang
Geheel perceel
Eigendomsituatie
Eigen grond