Beschrijving
Welkom thuis in dit sfeervolle en goed ingedeelde appartement aan het Johan Combéplein 25 in Arnhem! Met een logische indeling, veel natuurlijk licht en een fijne buitenruimte is dit een heerlijke plek om te wonen. Of je nu op zoek bent naar je eerste woning of een comfortabele nieuwe start, dit appartement biedt alle ingrediënten voor een prettig thuis. Benieuwd? Maak een afspraak en kom het zelf ervaren!
Ligging:
De woning is ideaal gelegen in een levendige en goed bereikbare omgeving. Dit fijne woonadres biedt het beste van twee werelden: een rustige woonomgeving met veel groen én de nabijheid van diverse voorzieningen.
Op loopafstand bevinden zich supermarkten, winkels en horecagelegenheden waardoor je voor dagelijkse boodschappen en ontspanning niet ver hoeft te gaan. Ook zijn scholen, kinderopvang en sportfaciliteiten in de directe omgeving te vinden, wat de locatie extra aantrekkelijk maakt voor gezinnen.
De bereikbaarheid is uitstekend. Openbaar vervoer zoals bushaltes en een treinstation zijn in de buurt en met de auto ben je via de uitvalswegen snel op de ringweg of snelweg. Kortom, een fijne locatie voor wie centraal en comfortabel wil wonen!
Indeling
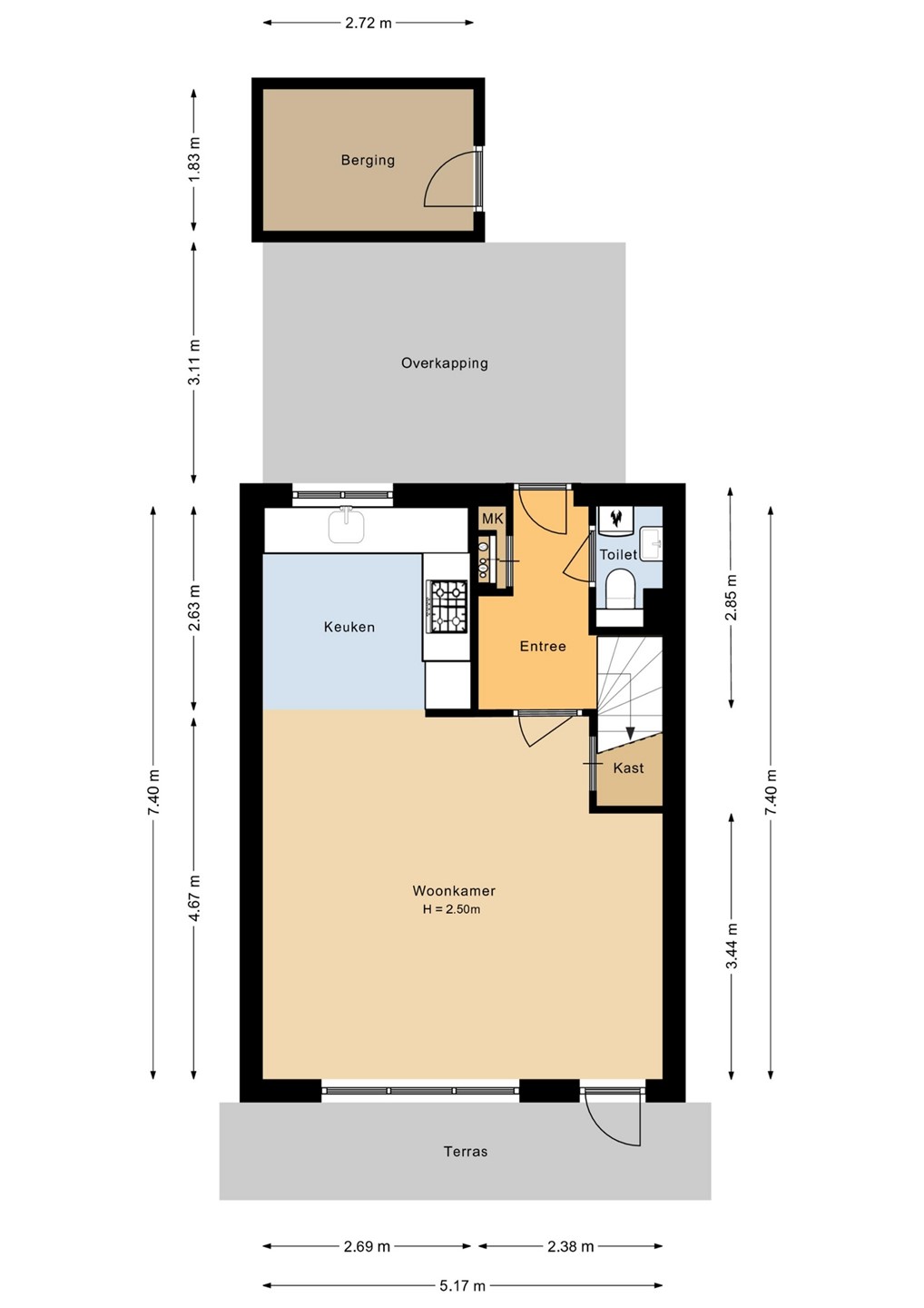
Begane grond:
Bij binnenkomst in de hal tref je direct de meterkast en het toilet, dat is voorzien van een fonteintje. De hal leidt naar de lichte woonkamer met een open keuken, waardoor de ruimte een open en uitnodigend karakter heeft. Dankzij de grote raampartijen valt er veel natuurlijk licht naar binnen, wat bijdraagt aan een aangename sfeer.
De keuken, die in 2014 is geplaatst, heeft een moderne en verzorgde uitstraling en is uitgerust met diverse inbouwapparatuur, waaronder een kookplaat, afzuigkap, combi-oven (met functies voor magnetron en grill), vaatwasser en een koel-vriescombinatie.
In de woonkamer bevindt zich een praktische trapkast, die zorgt voor extra opbergruimte, ideaal voor het opbergen van voorraad, huishoudelijke spullen of schoonmaakmiddelen. Vanuit de woonkamer heb je directe toegang tot het terras, waar je heerlijk kunt genieten van het buitenleven.
1e verdieping:
Op de bovenverdieping bevinden zich drie lichte slaapkamers. De moderne badkamer (uit 2014) is uitgerust met een ligbad, een aparte douche met regendouche en handdouche, een stijlvol wastafelmeubel en een aansluiting voor de wasmachine.
Tuin:
De woning beschikt over een omheinde buitenruimte die volledig is bestraat en deels is overkapt. Hierdoor kun je in alle seizoenen genieten van het buitenleven, ongeacht het weer. De overkapping biedt niet alleen beschutting tegen regen en felle zon, maar creëert ook een gezellige plekje. Daarnaast bevindt zich direct grenzend aan deze buitenruimte een praktische berging. Deze berging biedt volop opbergmogelijkheden voor bijvoorbeeld tuinmeubilair, fietsen, gereedschap of andere spullen die je niet dagelijks nodig hebt.
Highlights:
- Bouwjaar: 1987;
- Inhoud:262m³;
- Woonoppervlakte: 76 m² conform NEN2580 voorwaarden gemeten;
- VvE bijdrage: € 232,50 per maand dit is inclusief voorschot stookkosten;
- Geheel voorzien van houten kozijnen;
- Verwarming en warm water middels Cv-installatie bouwjaar 2020 (huur met afkoopregeling);
- Deels voorzien van houten en kunststof kozijnen;
- Volledig geïsoleerd;
- Energielabel A;
- Parkeervergunning €145,- per jaar;
- Berging voorzien van elektra;
- Aanvaarding/oplevering in overleg.
Deze informatie is door ons met de nodige zorgvuldigheid samengesteld. Onzerzijds wordt echter geen enkele aansprakelijkheid aanvaard voor enige onvolledigheid, onjuistheid of anderszins, dan wel de gevolgen daarvan. Alle opgegeven maten en oppervlakte zijn indicatief.